舍得文化博物馆
OPEN建筑事务所设计的舍得文化博物馆于2026年1月封顶。博物馆位于四川射洪舍得酒厂的东花园中。在雾气氤氲、群山环抱的涪江之畔,三座岛屿状的建筑体量从一个宽阔的圆形水池中浮现出来,构筑了穿越传统与未来的“一池三山”。
射洪位于四川盆地的底部,常年气候湿润、绿意盎然。酒厂远离城市,被纯净的自然山水环抱,拥有得天独厚的生态条件。空气、水、土壤、植被和微生物,这些人之外的因素(non-human actors),跟当地人的传统工艺与匠人精神相互作用,成就了独特的舍得酒,也深刻地启发了建筑设计。
OPEN的设计始于选址和造园(圆)。建筑师发现了东花园,这里靠近公路和厂区入口,但因为离开生产核心区,目前使用很少,却非常适合成为未来公众与酒厂的连接界面。
建筑师将一个直径90米的圆形水池嵌入现有的花园,以视觉上半透明的环廊围绕水池,水中有安静的涌泉和等离子喷雾装置。圆无棱角,顺畅地融入周围已有的园景,又为新博物馆建筑营造出静谧诗意的独立场地。
水中浮出三个看似独立的建筑体量:青铜、夯土和玻璃盒子。三个体量又分别跟水面有着不同的关系:一个浮在水上,一个坐在池中,一个嵌入水中上下各一半。半透明的玻璃盒子被安静的流水通体覆盖,水从屋顶流下,顺着四周的玻璃表面一直落到地下二层,往复循环。
水中的建筑倒影、流水和间歇的雾气、岛屿以及廊桥,营造出神性诗意的氛围,既是极简和克制的,又是丰富和变化的。拉开的建筑体量和水景的穿插交叠,创造出非常不同的博物馆游历体验。在这里,观展是在建筑的“山”和景观的“水”之间交替进行。人们时而在沉浸式的暗空间里,时而从丰富和变化的水景中穿过。在虚实和明暗的不断变化中,体会与自然环境、时间循环、以及诗酒文化的深层关联。
这里的设计灵感来自于中国古典园林中“一池三山”的造园理法,即用宽阔的水体和水中岛屿映射出上古神话中仙境的意向。仙境,是中国先民集体意识中理想生活的映射,跟传统诗酒文化中的飘然欲仙息息相通。
酒也是时间的艺术,是自然与时间共同发酵的产物。OPEN以三种源于自然并与舍得酿酒密切相关的材料——生土、玻璃和青铜,来塑造时间之诗。被流水覆盖的玻璃盒子,安静地讲述水的故事——水既是生命的源头,也是酒的底色。夯土盒子采用当地的黄土,这是用来做窖池的材料,而窖池则是舍得酿酒的灵魂。夯土也是当地的传统建造方法,在结合了当代的夯土技术后,可以既保留土墙的热工效能,又更好地耐受风雨和时间的痕迹。建筑师将特殊的符号嵌入土墙里,留给未来的世代去解读。青铜盒子的表面则覆盖弧形的穿孔青铜板,其上精心设计的孔洞暗藏了摩斯密码编译的描写射洪酒的诗句。青铜是传统酒器和乐器常使用的材料,建筑师以此致敬酿酒的工匠精神。随着时间推移,青铜表面的铜绿会缓慢变化,建筑有意留下时间掠过的痕迹。
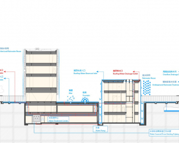
三个漂浮的盒子容纳了入口门厅、展览空间、工作坊、餐厅及体验商店等主要公共功能。水面之下,建筑空间为完整一体,包括了多功能小剧场、排练厅、水吧、办公及后勤等完备的功能,既为观者提供更多维度的丰富体验,也以连续空间的包容性成就了地上的纯净和诗意。
博物馆在设计上整合了被动式与主动式的节能策略,以构建低碳且具韧性的环保节能建筑体系。地源热泵系统和水蓄冷及蓄热系统的同时运用,可以极大地减少运行费用。青铜盒子屋顶设置太阳能光伏发电系统。生活热水采用空气源热泵及太阳能板,新风系统利用热回收。同时,项目建立了水循环系统,收集和再利用雨水,并采用酒厂生产中引流的涪江江水用于水池景观,充分利用了场地内及周边既有的基础设施和资源。
舍得文化博物馆正在紧锣密鼓地施工中,预计将于2027年春季完工。该项目已获2025 Active House Award一等奖、un Design Awards铂金奖。
| Designboom | OPEN's 'Shede Culture Museum' is Shaped from Rammed-Earth, Glass and Bronze call_made
概况
年份:
城市: 射洪, 中国
建筑面积: 10,876
用地面积: 14,574
类型: 建筑
业主: 舍得酒业
状态: 施工中